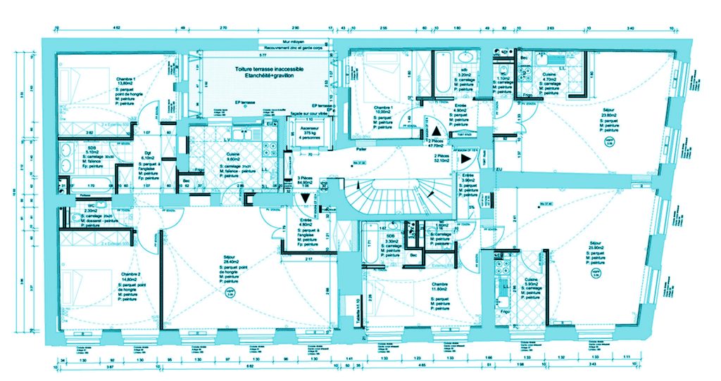
Réhabilitation lourde d’un immeuble ancien R+6 sur un niveau de sous-sol. Curage de l’ensemble du bâtiment, reprise des planchers y compris traitements acoustiques, création d’une gaine d’ascenseur, ravalement des façades sur cour, modification des lucarnes, création de châssis de toit. Aménagement de 14 logements répartis en 9 T2, 4 T3 et 1 T4 en duplex. Prestation de standing, appartements destinés àla vente. En RDC livraison de 3 coques brutes. •
En plein coeur de Paris, le charme de l’ancien et le confort du neuf