Aménagement extérieur et réhabilitation du bâtiment en milieu occupé : •rénovation de l’ensemble de la toiture et création de voûtes lumineuses •modernisation des façades pour une image plus moderne •création d’une passerelle extérieure pour l'accès des véhicules aux ateliers
Fluidifier et relooker...

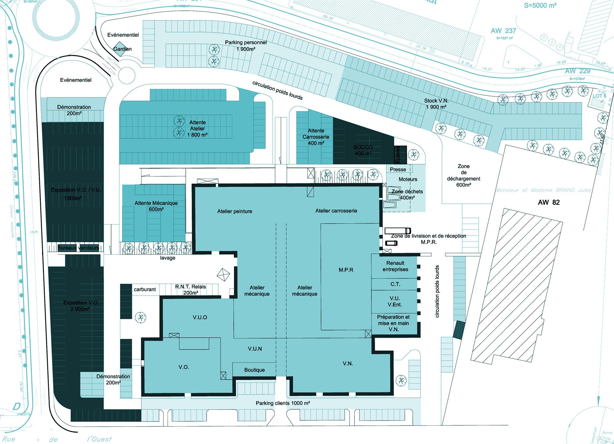
TYPE D'OUVRAGE Réhabilitation d'une concession automobile et aménagements extérieurs
ADRESSE
6 rue de l'Ouest
78200 MANTES-LA-JOLIE
MAITRE D'OUVRAGE RENAULT SIMCRA
MISSION COMPLETE
MONTANT DES TRAVAUX 3 000 000 € HT
SURFACE 12 500 m²
LIVRAISON 2007