RUE DES PYRAMIDES

RÉAMÉNAGEMENT DE BUREAUX

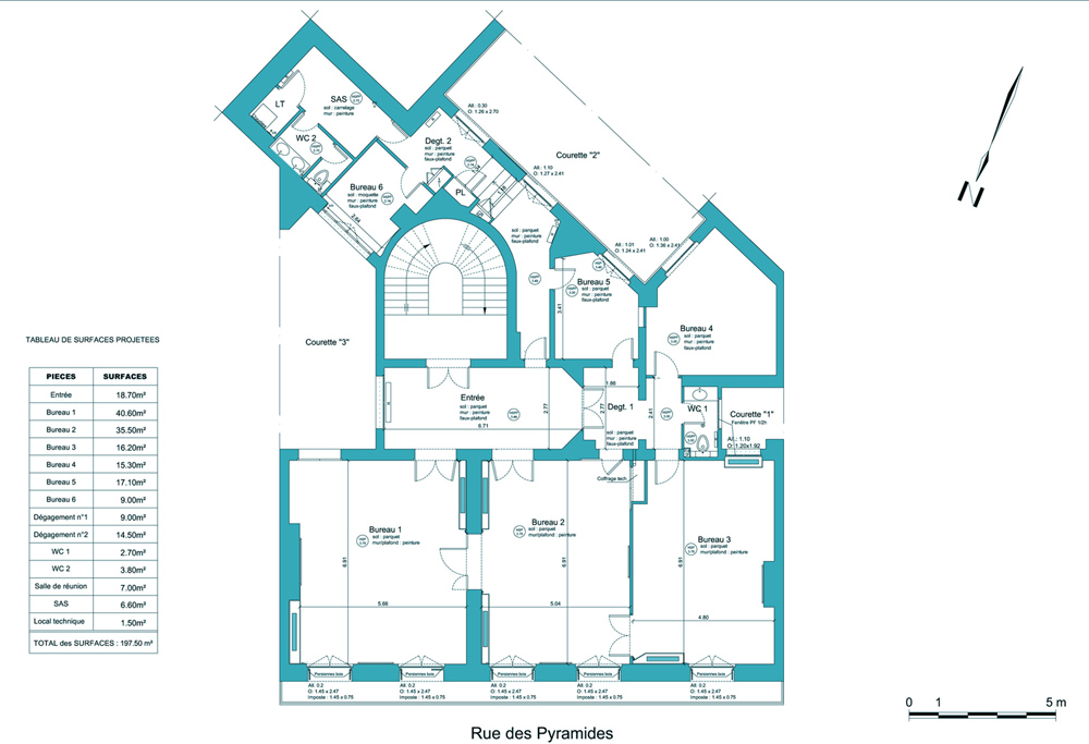
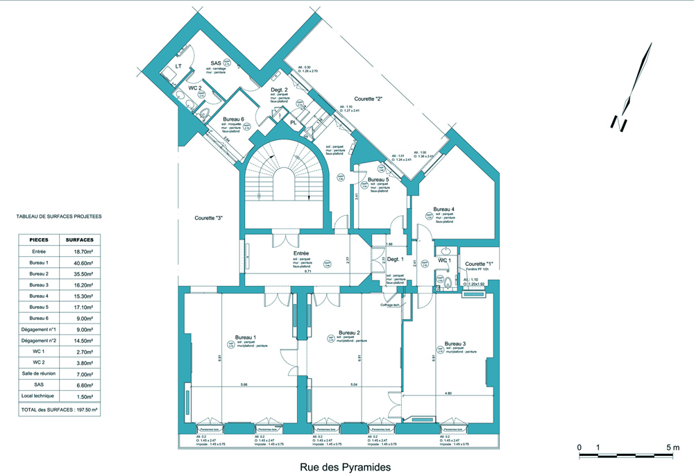
Réaménagement de bureaux standing comprenant l’installation de climatisations pour les niveaux R+2, R+3 et R+5 sur rue (surface totale de 543 m2). Réaménagement de plateaux de bureaux pour les niveaux R+2, R+3 et R+4 sur partie arrière de l’immeuble, comprenant notamment la création de verrières et le désamiantage d’enduit plâtreux en sous face de planchers. •

Classique haussmannien

TYPE D'OUVRAGE Réaménagement de bure

ADRESSE 29 rue des Pyramides
22 au 28 rue d'Argenteux
23 avenue de l'Opéra
75001 PARIS

MAITRE D'OUVRAGE GROUPAMA IMMOBILIER
21 boulevard Malesherbes
75008 PARIS

MISSION COMPLETE

MONTANT DES TRAVAUX 2 125 000 € HT

SURFACE 1716 m²

LIVRAISON 2007 - 2011

cheminée moulures parquet point de hongrie

Projets Similaires