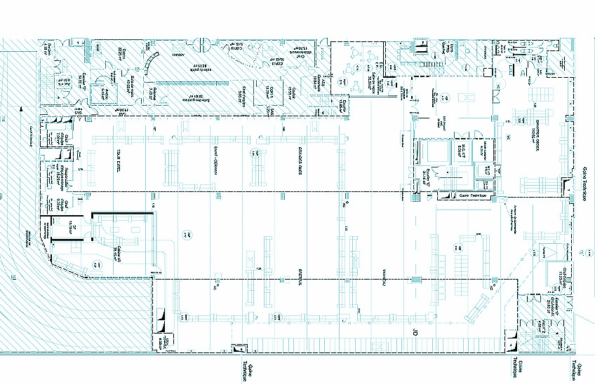
Implantation d’une plateforme de distribution du courrier (PDC) Paris 7e dans un immeuble existant, comprenant les chantiers de tri par quartiers, les bureaux du service, les vestiaires et parkings. Intervention en site occupé pour la rénovation et mise en conformité du rez-de-chaussée, 1er étage, 1er et 2e sous-sol de l’immeuble. •
Immersion dans l'industrie postale...

TYPE D'OUVRAGE Réhabilitation bâtiment industriel
ADRESSE
6-18 rue François BONVIN
75015 PARIS
MAITRE D'OUVRAGE LA POSTE DLI PARIS SUD
MISSION ESQ, APS, APD, PRO, ACT, VISA, DET, AOR