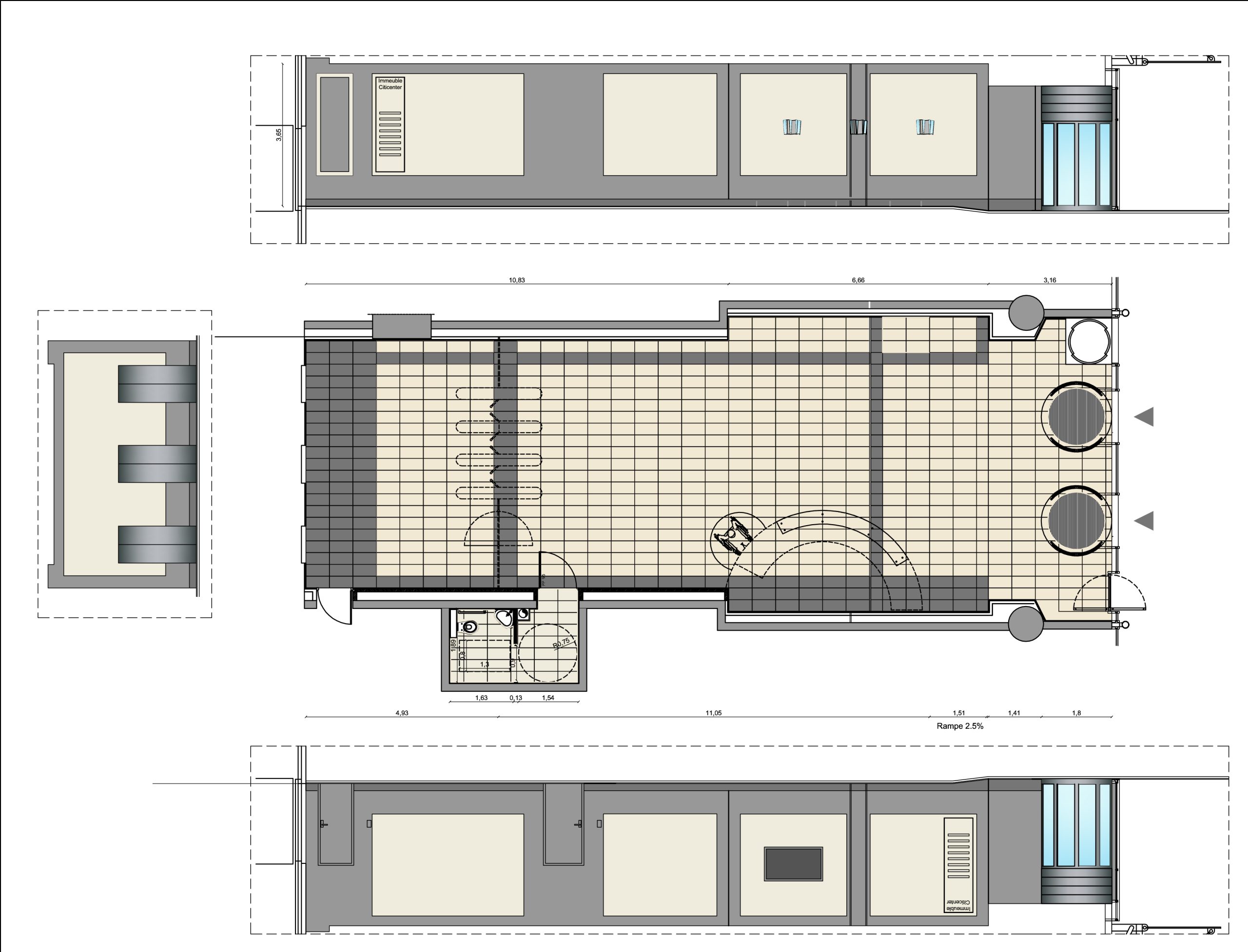
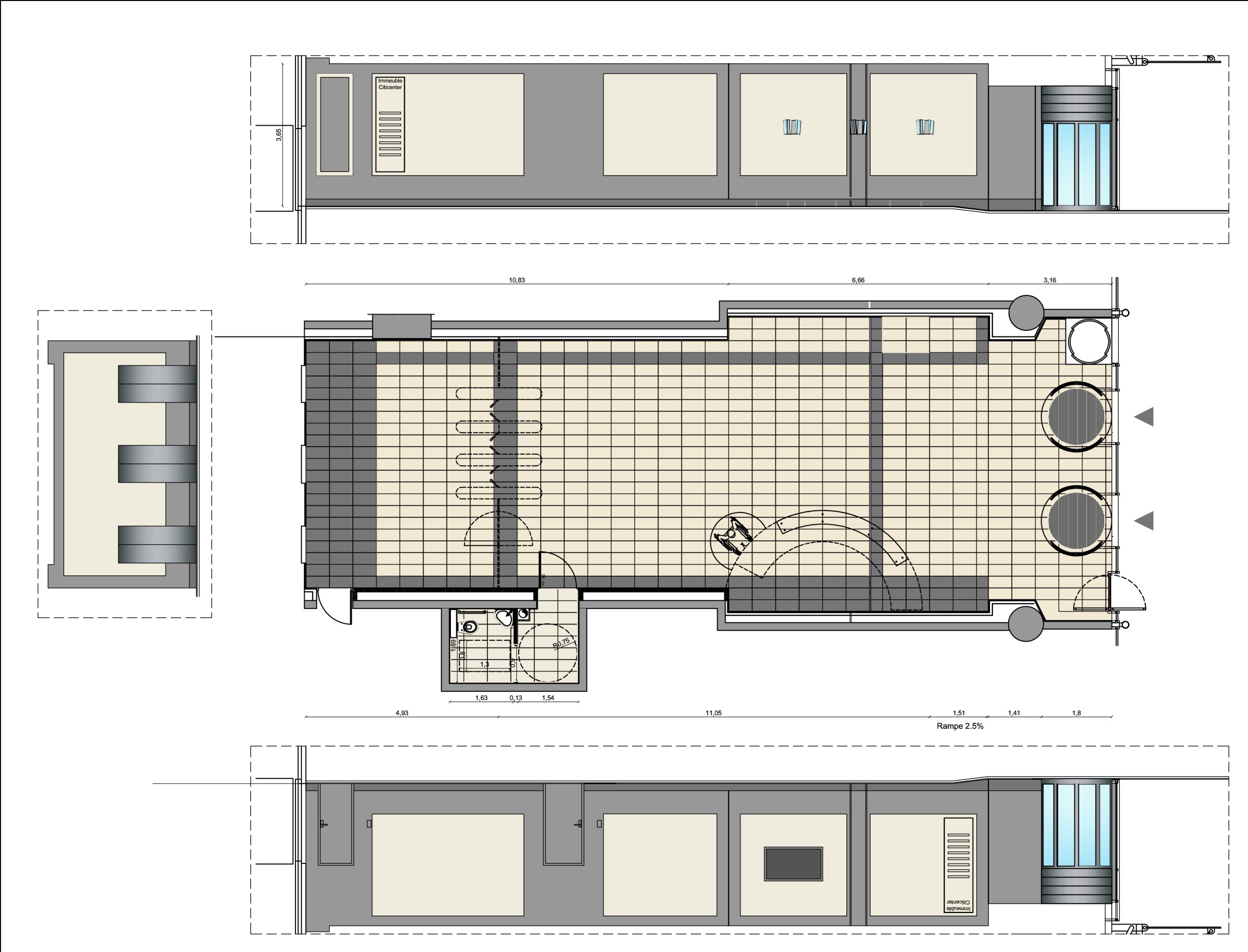
Dans le cadre d’un programme de réhabilitation et de valorisation de l’immeuble Citicenter, le projet de réaménagement du hall d’accueil principal donnant sur le Parvis de la Défense comprend la création de : - une nouvelle façade - un nouveau volume pour le hall d'accueil ; - une triplex d’ascenseurs en remplacement des escalators existants pour relier les niveaux -3 à 0 ; - une boutique de 114 m² et une autre de 530 m². •
De la sortie du métro au bureau!

TYPE D'OUVRAGE
Réhabilitation / Extension
Création de commerce
ADRESSE
19 Le Parvis,
92073 La Défense
MAITRE D'OUVRAGE GROUPAMA IMMOBILIER
MISSION
ESQ / APS / APD / PRO / ACT
VISA / DET / AOR
MONTANT DES TRAVAUX 2 000 000 € HT
SURFACE
- Hall : 145 m²
- Boutique 1 : 114 m²
- Boutique 2 : 530 m²
LIVRAISON 2009