Cap 3000 créé en 1969. Réalisation d’une boutique temporaire en 2017 suivant un nouveau concept Nespresso avec format réduit dans un centre commercial. Réalisation en 2020 d’un projet complet de rénovation de la boutique pour un format définitif reprenant l’ensemble du design Nespresso.
Une boutique temporaire ancrée dans l’histoire
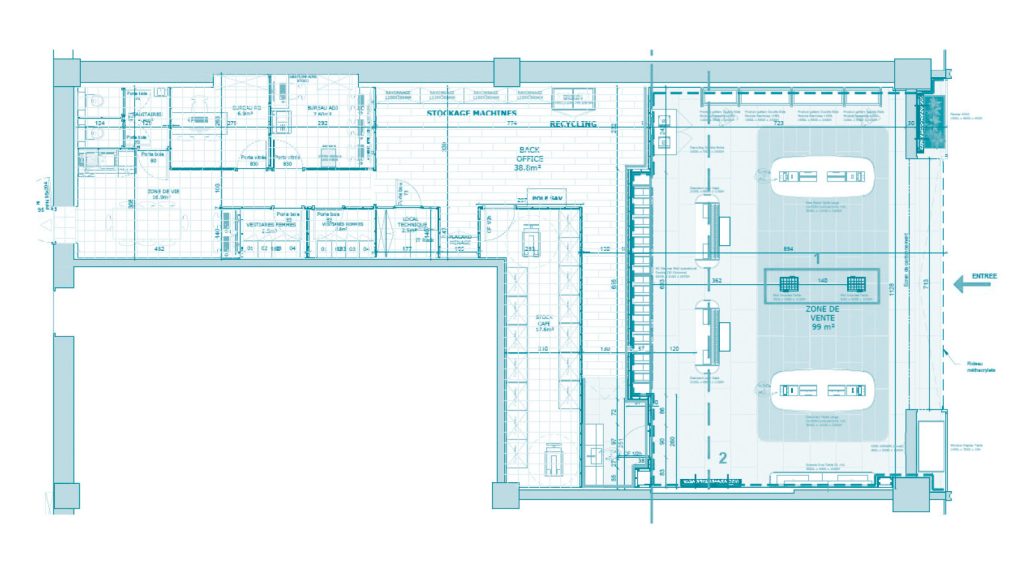
TYPE D'OUVRAGE Commerce
ADRESSE
Centre commercial CAP 3000
317 Avenue Eugène DONADEÏ
06 700 Saint Laurent du Var
MAITRE D’OUVRAGE NESPRESSO France
MISSION Complète
MONTANT DES TRAVAUX 200 000 € HT
SURFACE 180 m²
LIVRAISON 2020


